您的位置:浮浪网 > 社会 > >正文

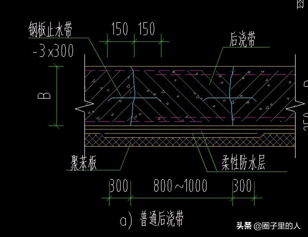
​图解:止水钢板原材验收、节点做法要点

摘要图解:止水钢板原材验收、节点做法要点 止水钢板的原理为: 新旧混凝土接缝位置称为施工缝,此属于防水混凝土防水的薄弱环节,增加止水钢板后,水沿着新旧混凝土接茬位置的缝...

图解:止水钢板原材验收、节点做法要点

止水钢板的原理为:

新旧混凝土接缝位置称为施工缝,此属于防水混凝土防水的薄弱环节,增加止水钢板后,水沿着新旧混凝土接茬位置的缝隙渗透时碰见止水钢板即无法再往里渗,止水钢板起到了切断水渗透路径的作用。及时沿着止水钢板与混凝土之间的缝隙渗透,止水钢板有一定宽度,也延长了水的渗透路径,同样可以起到防水作用。

止水钢板原材验收:

外观质量:

1、钢带表面不允许有气泡、结疤、裂纹、折叠、夹杂和压人氧化铁皮,钢带不允许有分层。轻微的红氧化铁皮允许存在,允许有深度或高度不超过厚度公差之半的凹坑、凸起、划痕、麻点等局部缺陷,其深度或高度从实际尺寸算起。

2、不切边钢带边缘不允许有缺口、边部裂纹,允许有深度不大于宽度公差之半的其他边部缺陷,且应保证钢带最小宽度。

3、切边钢带边缘允许有不大于0.50 mm的飞刺。/4、钢带局部缺陷允许清理,但清理后应保证钢带的最小厚度和宽度。清理处应平滑、无棱角。

尺寸:

1、止水钢板厚度尺寸及允许偏差应符合表1的规定:

2、止水钢板宽度尺寸及允许偏差应符合表2的规定:

3、止水钢板的厚度应均匀,在同一截面的中间与两边部分测量三点厚度,其最大差值(三点差)应符合表3的规定:

4、钢带轧制方向的厚度应均匀,在同一条直线任意测定三点,其最大差值(同跳差)应符合表4的规定:

节点做法:

1、水平直角节点做法:

迎水面

背水面

2、十字接头节点做法:

迎水面

背水面

3、对接节点做法:

迎水面

4、丁字接头节点做法:

迎水面

背水面

5、竖向直角节点做法:

迎水面

6、止水钢板遇柱子箍筋的做法:

施工要点:

1、应尽力保证止水钢板在墙体中心线上;

2、两块钢板之间的焊接要饱满且为双面焊,钢板搭接不小于20mm;

3、墙体转角处的处理,一、整块钢板弯折;二、丁字型焊接;三、7字型焊接。

4、止水钢板的支撑焊接,可以用小钢筋点焊在主筋上;

5、止水钢板穿过柱箍筋时,可以将所穿过的箍筋断开,制作成开口箍,电焊在钢板上。

6、止水钢板的“开口”朝迎水面。

标签:

推荐阅读

  • ​伏天氏:论人皇上的境界划分,四方村与守墓村类似,先生对标村长

    伏天氏:论人皇上的境界划分,四方村与守墓村类似,先生对标村长 文/亦然 人皇境筑大道神轮,而人皇九境,神轮大致分为凡品、金品、仙品及完美神轮神品,而所谓完美神轮,便是...

    2025-12-19 05:28:10
  • ​百度第一贴吧-李毅吧

    百度第一贴吧-李毅吧 我有一个多年养成的习惯,闲暇的时候总是会不由自主地逛逛贴吧。 打开百度贴吧app,几乎成了我解锁手机后的下意识操作。我喜欢不带有任何一个目的性地这里...

    2025-12-19 05:25:55
  • ​天津市高校,校(院)长简介

    天津市高校,校(院)长简介 图片来源于学校网页 1、天津大学 校长(副部长级):柴立元, 男,汉族,1966年9月29日出生,江西省万年县人,博士、中国工程院院士。 图片来源于学校网页...

    2025-12-19 05:23:41
  • ​麦家:“湘西出文人,湘西要有文化自信!”

    麦家:“湘西出文人,湘西要有文化自信!” 人物简介: 麦家,1964年出于生于浙江富阳,当代著名小说家、编剧、中国作家协会副主席、全国杰出专业技术人才、茅盾文学奖得主,...

    2025-12-19 05:21:27
  • ​国内咨询公司排名前十名

    国内咨询公司排名前十名 一家优秀的咨询公司,可以协助企业理清发展方向,避免走弯路错失发展良机,对企业非常重要,所以选择一家好的咨询公司,也是重中之重! 1.北大纵横:以...

    2025-12-19 05:19:12
  • ​从前的天后艾薇儿,为何会销声匿迹呢?下面有你想知道的答案

    从前的天后艾薇儿,为何会销声匿迹呢?下面有你想知道的答案 曾经的歌坛天后艾薇儿为何会销声匿迹呢,是不是很多小仙女都很疑惑呢,接下来你们一定要好好看这篇文章,因为这里...

    2025-12-18 06:00:19
  • ​《被演义遗忘的三国猛人文聘》

    《被演义遗忘的三国猛人文聘》 在三国那个名将如云、战火纷飞的年代,关羽的忠勇、吕布的威猛,可谓家喻户晓。然而,有一位猛将,他的名字在正史中熠熠生辉,却被《三国演义》...

    2025-12-18 05:58:05
  • ​医生提醒:饮用碳酸水的利弊有哪些?了解它对身体的真正影响

    医生提醒:饮用碳酸水的利弊有哪些?了解它对身体的真正影响 想象一下,在炎热的夏日午后,您打开一瓶冒着气泡的碳酸水,一股清爽的感觉瞬间席卷全身。碳酸水,这种看似简单的...

    2025-12-18 05:55:51
  • ​苏轼是如何评价李白的文学才华和人品的?

    苏轼是如何评价李白的文学才华和人品的? 在中国古代文学史上,李白与苏轼分别代表了两个不同的文学高峰,各自以独特的才华和深邃的文学造诣在诗坛上留下了浓墨重彩的一笔。两...

    2025-12-18 05:53:37
  • ​彭老总侄女彭梅魁:伯父落难时不离不弃,死后葬在彭老总墓旁

    彭老总侄女彭梅魁:伯父落难时不离不弃,死后葬在彭老总墓旁 谁敢横刀立马,唯我彭大将军。要说新中国近代史上有名的将帅,那可以说是数不胜数,但能被主席赞誉横刀立马的,只...

    2025-12-18 05:51:22
  • ​可爱狗狗史努比壁纸欣赏

    可爱狗狗史努比壁纸欣赏 史努比(Snoopy),美国漫画《花生漫画》及其衍生作品里的角色,原型为米格鲁猎兔犬。动漫中由比尔·梅兰德兹配音。 它是一只在雏菊山小狗农庄出生的小猎...

    2025-12-18 05:49:08
  • ​话说除夕!!!

    话说除夕!!! 除夕,又叫大年夜,是中国传统农历年的最后一天,这一天在中国文化中有着特殊的地位。除夕不仅标志着一年的结束,也预示着新年的到来。在这天,千家万户都要辞...

    2025-12-18 05:46:54
  • ​34岁李沁冷艳亮相,肌肉线条碾压全场,网友:真自律!

    34岁李沁冷艳亮相,肌肉线条碾压全场,网友:真自律! 这位34岁的女演员用行动证明:真正的性感从不需要硬凹,当自律成为习惯,透视装也能穿出高级质感。 三个月前的澳门尖叫之...

    2025-12-18 05:44:39
  • ​这种症状肯定叫作甄善美综合症。《爱上女主播》续写42

    这种症状肯定叫作甄善美综合症。《爱上女主播》续写42 原创作品谢绝转载 42、 当时太痛,像离开水的鱼无法呼吸,她一心只想逃离,没有勇气去求证心底的犹疑,来不及去思考,或许...

    2025-12-18 05:42:25
  • ​沭阳:被高铁时代遗忘的“百强县”之耻

    沭阳:被高铁时代遗忘的“百强县”之耻 沭阳:被高铁时代遗忘的“百强县”之耻 在中国高铁里程稳居世界第一的今天,长三角的苏北强县沭阳,却像一个被时代狠狠甩下的弃儿。这...

    2025-12-18 05:40:11
  • ​太惨了!湖南高速重大车祸,十几个家庭破碎,事故原因或是人为

    太惨了!湖南高速重大车祸,十几个家庭破碎,事故原因或是人为 没想到的是,在春运返程高峰快要结束的时候,在许广高速湖南长沙段发生了一起重大车祸,已经造成16人死亡、66人...

    2025-12-17 13:05:44
  • ​居高不下!广州市海珠区新房成交价来了,15个新楼盘房价一览

    居高不下!广州市海珠区新房成交价来了,15个新楼盘房价一览 近日,小编陆续汇总了广州市番禺区、黄埔区、天河区、越秀区等市区的新房成交价格,今日小编从多个房产平台综合整...

    2025-12-17 13:03:30
  • ​RIP!前NBA球员去世!年仅25岁,身患遗传性肥胖症

    RIP!前NBA球员去世!年仅25岁,身患遗传性肥胖症 来自知名记者Shams的一条最新消息,据报道, 前NBA球员凯莱布斯瓦尼根今天去世 ,斯瓦尼根出生于1997年4月18日,2个月前他才刚刚度过...

    2025-12-17 13:01:16
  • ​赵老哥:实战教学第八课“神龙摆尾”,这样操作抓涨停概率更大

    赵老哥:实战教学第八课“神龙摆尾”,这样操作抓涨停概率更大 上一讲,我们介绍了龙头首阴战法,这是一种传统的追击涨停方法,比较适合激进一些的投资人。 实战中,谨慎型的...

    2025-12-17 12:59:01
  • ​武警部队穿过的那些少见的迷彩服

    武警部队穿过的那些少见的迷彩服 武警部队在着装上有个特点,特别喜欢倒腾,时不时搞出些稀奇古怪的玩意。可能是在90年代以警务部门的名义和国外交流比较多的缘故,因此想把一...

    2025-12-17 12:56:47